Vanguard Lift Vanguard Lift

Fujivista Bronze Cabin Sleek Hydraulic Buffer Elevator for Passengers in Hotel Environments

Customization: Available
Driving Type: AC Elevator
Capacity: 500-1000kg

Product Description

Basic Specifications
Model NO.
JH-RGT7
Persons
6 - 10
Speed
1.00 - 2.00m/s
Control Mode
Collective Selective Control
Computer Room
Up
Elevator Door
Center Opening Door
Traction Machine
Gearless Traction Machine
Control System
Monarch Vvvf Controller
Material
Mirror Etching Panel
Application
Hotel, Apartment, Office Building
Buffer
Hydraulic Buffer
Optional
Ard, IC Card, Remote Monitor
Passenger Elevator Overview

Our passenger elevators are specifically designed for high-rise environments, offering quiet operation, smooth rides, and exceptional energy efficiency. Each unit features customizable cabin designs to match your building's aesthetic.

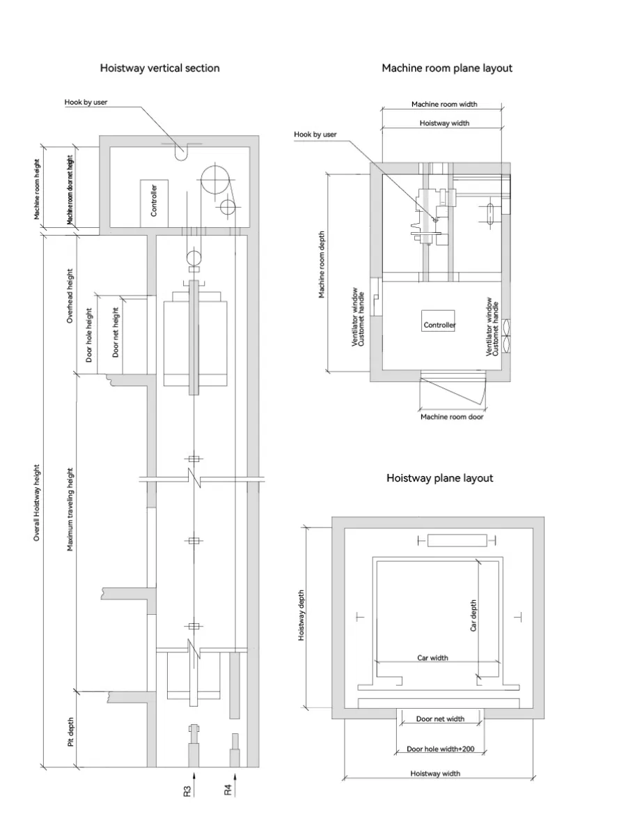
Technical Construction Sketch
Small Machine Room Construction Sketch
Key Construction Notes:
  • Drawings meet standard elevator technical specifications.
  • Machine room holes require a >50mm step height.
  • Post-installation door sill steps prevent water and debris entry.
  • Buffer base must follow specific installer graphic requirements.
Load (kg) Speed (m/s) Hoistway Size (XxY) Machine Room Size Car Inner Size Door Net Opening Overhead (OH) Pit Depth (PP)
630 1.0 2000×1800 2000x3500 1400×1100 800 4500 1500
1.5 4600 1600
1.75 4700 1700
2.0 4900 2000
Service & Support
  • Standard Warranty: 12 months post-assembly (excluding transport fees).
  • Global Support: 24/7 technical assistance and rapid parts supply.
  • Professional Training: On-site or remote operation and maintenance training.
  • Turnkey Solutions: Complete project management from design to delivery.
Factory Support
Manufacturing Excellence

As a leading Chinese elevator manufacturer with over 30 years of expertise, we are certified with ISO 9001 and CE. Our products are exported to over 10 countries, ensuring reliability through innovation and strict quality control.

Why Choose Us?

Competitive pricing, bulk discounts, fast shipping, and comprehensive customs clearance support.

Other Products

Home elevators, Freight elevators, Sightseeing elevators, and more.

Frequently Asked Questions
Q: How is the elevator installation handled?
A: We provide comprehensive installation manuals and detailed technical drawings. You can hire a local team, and our engineers will provide remote guidance to ensure a smooth setup process.
Q: What is the warranty period for the elevator?
A: We provide a standard warranty of 12 months following the completion of assembly (excluding transport fees). Technical support is available 24/7.
Q: How do you protect against damage during sea freight?
A: All products are packed in reinforced wooden crates with anti-rust packaging. For CIF terms, we provide full insurance covering the goods from port to port.
Q: What is the timeline for a customized elevator project?
A: The design proposal is ready within 3 days of receiving specifications. Production begins after the deposit, and shipping typically occurs within 15 days after the final balance is cleared.
Q: What are the standard payment terms?
A: We typically require a 30% deposit to initiate production, with the remaining 70% balance due after production is complete and before shipment. T/T is the primary accepted method.
Q: Are there additional costs besides the elevator price?
A: Quotes usually include the product, export packaging, and freight/insurance (for CIF). Additional costs to consider are local import duties, customs fees, inland transport, and local installation labor.

Related Products