Vanguard Lift
| Parameter | Technical Data | ||||
|---|---|---|---|---|---|
| Loading (Kg) | 630 | 800 | 1000 | 1350 | 1600 |
| Speed (m/s) | 1.0/1.75 | 1.0/1.75/2.0 | 1.0/1.75/2.0 | 1.0/1.75/2.0/2.5 | 1.0/1.75/2.0/2.5 |
| Motor | Gearless Motor | ||||
| Door Control | VVVF | ||||
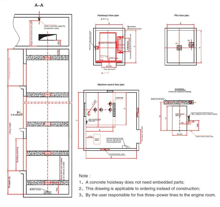
| Pit Depth (m) | 1.5 | 1.5-1.7 | 1.5-1.8 | 1.8-2.0 | 1.8-2.0 |
| Power | 380V, 220V, 50HZ/60HZ | ||||


The manufacturing facility covers an area of more than 50 mu, with a factory area exceeding 15,000 square meters, including a dedicated elevator test tower. Equipped with first-class sheet metal production lines and professional testing equipment, the annual production capacity reaches over 3,000 units. The "Customer-oriented" philosophy is integrated into research, design, manufacturing, and installation processes.
Comprehensive introduction of advanced technology and manufacturing processes allows for a product structure that meets diversified needs. Products include passenger elevators, cargo elevators, residential elevators, sightseeing elevators, and specialized hospital bed elevators. High-performance products are customized according to specific client requirements.



💡 Key Achievements:
📦 Standard Packaging: Solid wooden cases secured in containers to ensure safety during long-distance sea transportation.