Vanguard Lift
| Specifications | Patient Bed Elevator Lift Details | ||||
|---|---|---|---|---|---|
| Application | Residential, Hotel, Office, Medical | ||||
| Loading (Kg) | 630 | 800 | 1000 | 1350 | 1600 |
| Speed (m/s) | 1.0/1.75 | 1.0/1.75/2.0 | 1.0/1.75/2.0 | 1.0/1.75/2.0/2.5 | 1.0/1.75/2.0/2.5 |
| Motor | Gearless Motor | ||||
| Door Control | VVVF | ||||
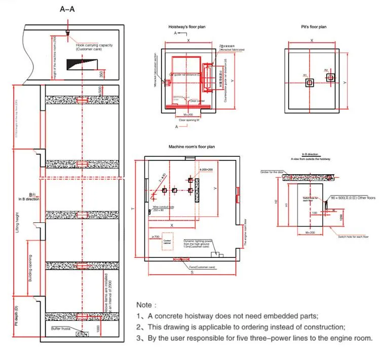
| Pit Depth (m) | 1.5 | 1.5-1.7 | 1.5-1.8 | 1.8-2.0 | 1.8-2.0 |
| Power | 380V, 220V, 50HZ/60HZ | ||||
The facility covers an area of more than 50 mu, with a factory area exceeding 15,000 square meters, including a dedicated elevator test tower. Equipped with first-class sheet metal production lines and control cabinet assembly systems, the annual production capacity reaches over 3,000 sets. The "Customer-oriented" philosophy drives the research, design, manufacturing, and installation processes to provide high-quality service.
The enterprise has passed ISO9001 international quality management system certification and holds various honorary certificates for quality stability and green manufacturing. By introducing advanced European technology and manufacturing processes, a diversified product structure has been formed to meet global needs.



Solid wooden box in container: Specifically designed for long-distance sea transportation to ensure maximum safety and protection of the equipment.