1 / 5
Vanguard Lift
| Customization: | Available |
|---|---|
| After-sales Service: | 7*24 |
| Warranty: | 2 Year |


In order to save space and make the building more elegant and beautiful, our small machine room passenger elevator adopts a compact permanent magnet synchronous gearless traction machine and a specially designed control cabinet. This design saves machine room space by up to 56%.
Machine Roomless (MRL) Passenger ElevatorWith a deep understanding of environmental protection, energy saving, and area optimization, the MRL elevator embodies green humanism. It requires only an independent shaft space, saving up to 40% of electric energy and 10% of building area compared to traditional traction elevators.






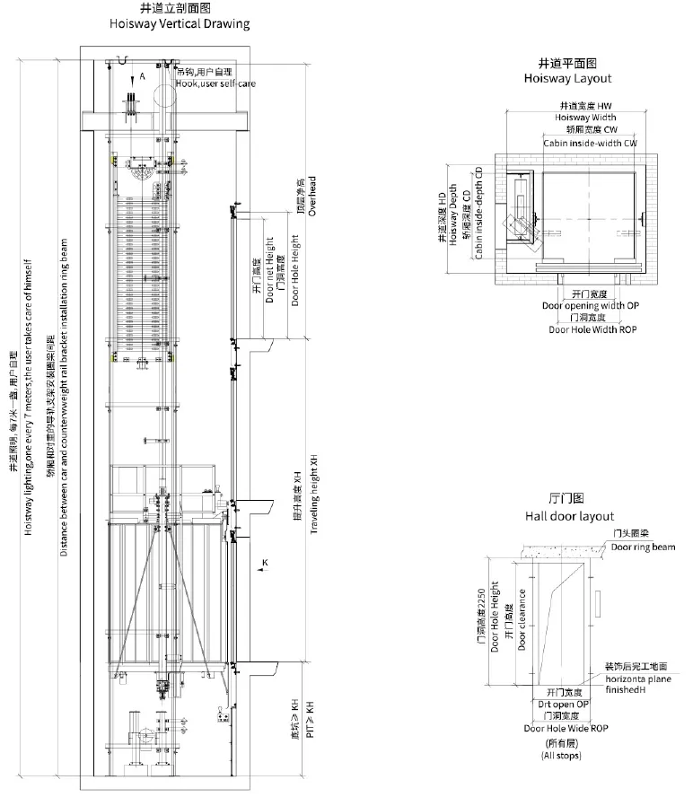
| Load (kg) | Speed (m/s) | CW*CD*CH (mm) | OP*OPH (mm) | HW*HD (mm) | OH (mm) | PH (mm) |
|---|---|---|---|---|---|---|
| 630 | 1.0 - 1.75 | 1100*1400*2500 | 700*2100 | 1900*1800 | 4300-4500 | 1500-1600 |
| 800 | 1.0 - 1.75 | 1350*1400*2500 | 800*2100 | 2150*2050 | 4400-4600 | 1500-1600 |
| 1000 | 1.0 - 1.75 | 1600*1400*2500 | 900*2100 | 2400*2200 | 4600-4700 | 1600-1700 |
| 1150 | 1.0 - 1.75 | 1400*1800*2500 | 900*2100 | 2300*2200 | 4600-4700 | 1600-1700 |
| 1600 | 1.0 - 1.75 | 1900*1800*2500 | 1100*2100 | 2900*2500 | 4600-4800 | 1700-1800 |
| Load (kg) | Speed (m/s) | CW*CD*CH (mm) | OP*OPH (mm) | HW*HD (mm) | OH (mm) | PH (mm) |
|---|---|---|---|---|---|---|
| 630 | 1.0 - 1.75 | 1300*1250*2500 | 800*2100 | 2000*1800 | 4450-4600 | 1500-1600 |
| 800 | 1.0 - 2.0 | 1400*1350*2500 | 800*2100 | 2000*2050 | 4450-4750 | 1500-1700 |
| 1000 | 1.0 - 2.0 | 1600*1450*2500 | 900*2100 | 2200*2200 | 4450-4750 | 1500-1700 |
| 1350 | 1.0 - 2.0 | 1750*1700*2500 | 1100*2100 | 2450*2400 | 4550-4800 | 1550-1750 |
| 1600 | 1.0 - 2.0 | 1900*1800*2500 | 1100*2100 | 2600*2500 | 4550-4800 | 1550-1750 |