1 / 5
Vanguard Lift
Machine Roomless (MRL) Freight Elevator with Steel Plate Floor
A Machine Roomless (MRL) Freight Elevator is an advanced vertical transportation system designed for heavy-duty cargo movement without the need for a separate machine room. By integrating the motor and control system within the elevator shaft, MRL freight elevators maximize space efficiency while maintaining high load capacity (typically 2,000-10,000 lbs), making them ideal for warehouses, factories, hospitals, and industrial facilities.
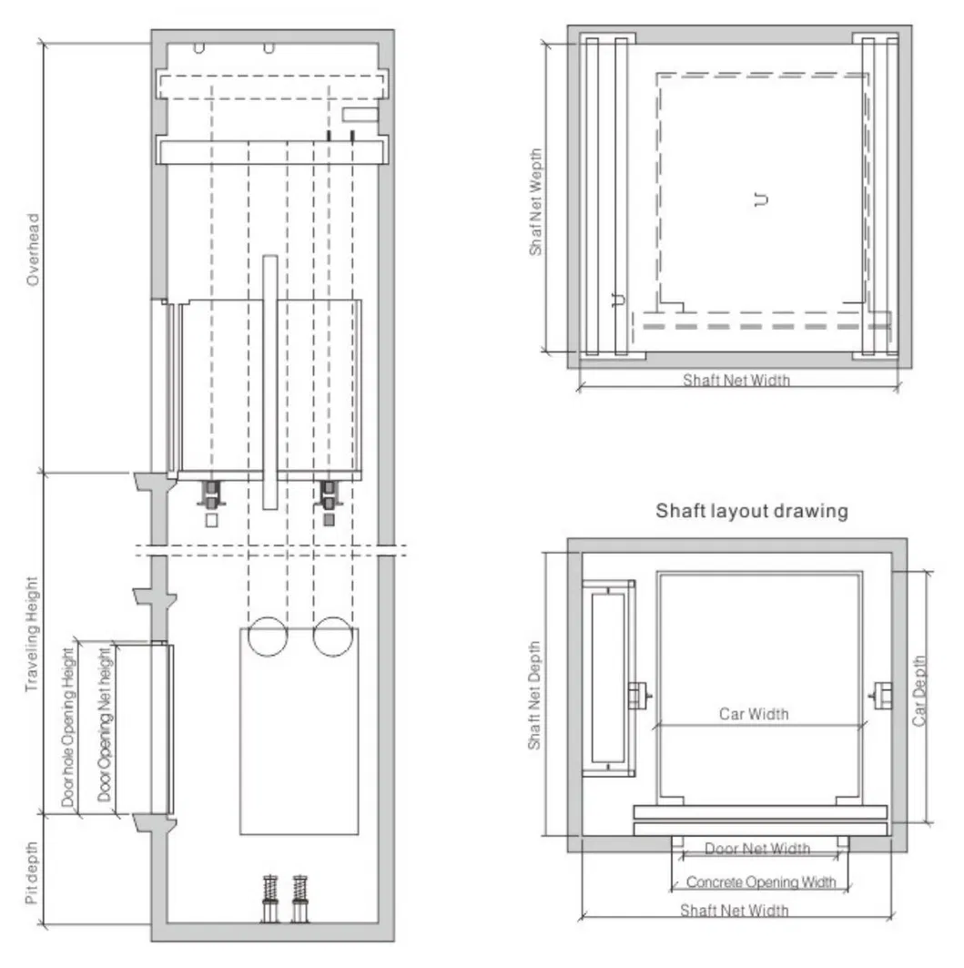
| Load(kg) | Speed(m/s) | Exterior size (mm) | Net door opening (mm) | Shaft size (mm) | Door Open type | ||
|---|---|---|---|---|---|---|---|
| C.W x C.D x D.H | 2P Central opening | width x depth | Overhead height | Pit depth | |||
| 1000 | 0.5 | 1500x1800x2200 | 1200x2100 | 2250x2200 | 4500 | 1500 | Two panel side opening |
| 1.0 | 4500 | 1500 | |||||
| 1.5 | 4600 | 1600 | |||||
| 2.0 | 4800 | 1800 | |||||
| 2000 | 0.5 | 2000x2300x2200 | 1500x2100 | 3150x2660 | 4800 | 1500 | Two panel side opening |
| 1.0 | 5000 | 1500 | |||||
| 1.5 | 5200 | 1600 | |||||
| 2.0 | 5200 | 1800 | |||||
| 3000 | 0.5 | 2470x2560x2200 | 1800x2100 | 3700x3000 | 5000 | 1600 | Four panel center opening |
| 5000 | 0.5 | 2800x3400x2500 | 2400x2400 | 4250x3800 | 6100 | 1600 | Four panel center opening |











