Vanguard Lift Vanguard Lift

Fujivista 3 Story Residential Lift Mrl Home Elevator with Inverter Technology for Small Villa and Residence

Customization: Available
Driving Type: AC Elevator
Capacity: 500-1000kg

Product Description

📊

Basic Specifications

Model NO.JH-R01
Capacity6 - 10 Persons
Speed1.00 - 2.00m/s
Control ModeCollective Selective Control
Machine RoomUp / Machine Roomless Option
Elevator DoorCenter Opening Door
Traction MachineGearless Traction Machine
MaterialMirror Etching Panel
Control SystemMonarch Vvvf Controller
BufferHydraulic Buffer
ApplicationHotel, Apartment, Office Building
Safety OptionsARD, IC Card, Remote Monitor
🏗️

Product Description

Our latest Inverter Elevator design is optimized for domestic and residential markets, providing a smooth Small Residential Lift experience. Engineered for high-rise buildings, these elevators offer quiet rides, superior energy efficiency, and fully customizable cabins.

✔️ Approved drawings guide installation to meet international standards.
✔️ Ensured >50mm step and proper width for machine room efficiency.
✔️ Integrated water prevention design between decor and door sill.
✔️ Professional buffer base creation under expert guidance.
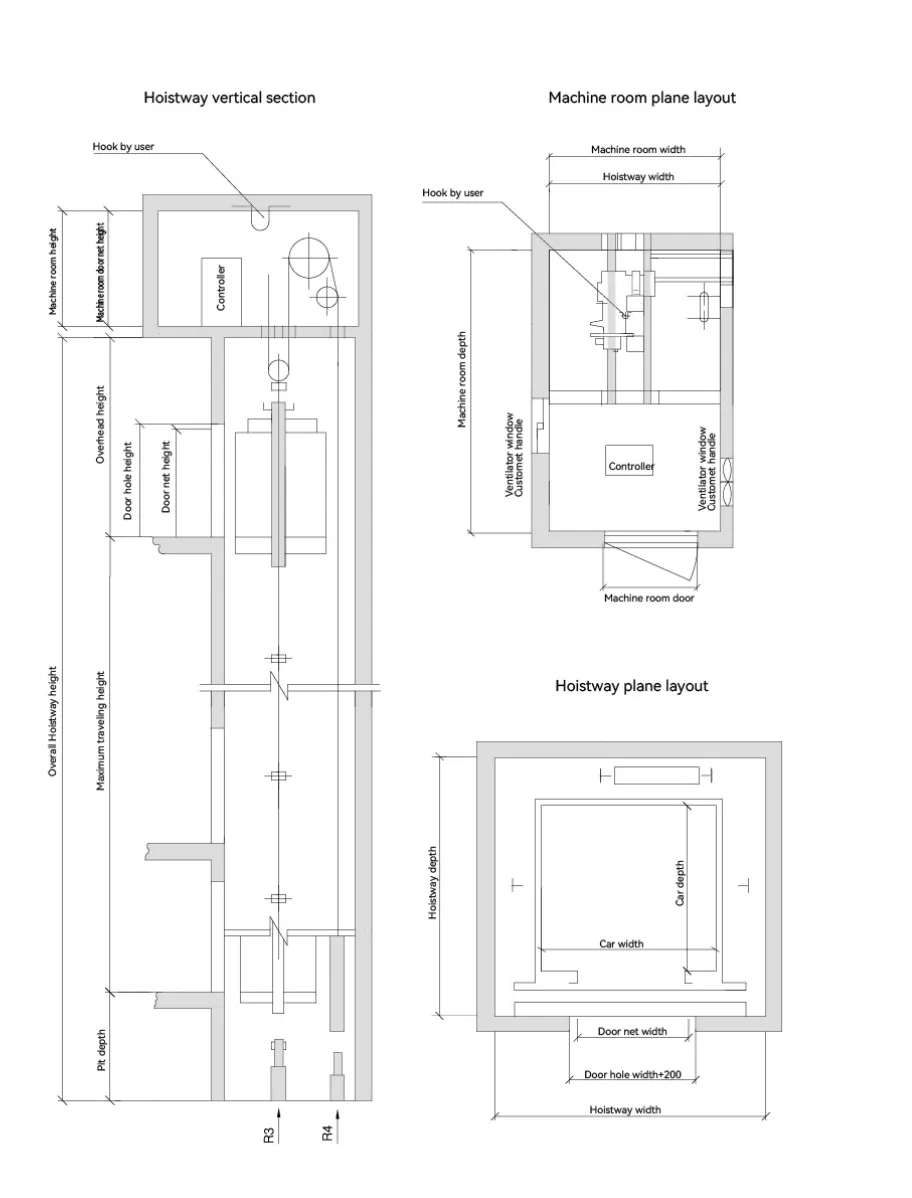
Small machine room passenger elevator sketch

Small machine room passenger elevator technical sketch

📋

Technical Parameters

Load (kg) Speed (m/s) Hoistway Size (mm) Machine Room Size (mm) Car Dimension (mm) Door Opening (mm) Overhead Height Pit Depth
630 1.0 2000 × 1800 2000 x 3500 1400 × 1100 800 4500 1500
1.5 4600 1600
1.75 4700 1700
2.0 4900 2000

* Note: For reference only; final manufacture follows the specific contract.

🛠️

After Sales Service

Standard Warranty: 12 months post-assembly (excludes transportation fees).

Global Support: 24/7 technical assistance and rapid spare parts availability.

Training: Comprehensive on-site or remote operation and maintenance training programs.

🏢

Manufacturing Capability

Factory Overview

As a leading Chinese elevator manufacturer with ISO 9001 and CE certifications, we export to over 10 countries. Our focus remains on R&D and high-quality products including home elevators, freight elevators, and sightseeing models.

Frequently Asked Questions

Q: How to handle installation post-purchase?
A: Detailed manuals and technical drawings are provided. You can hire local installation teams while our engineers offer remote guidance throughout the process.
Q: How is damage risk during sea freight managed?
A: We use reinforced wooden crates and anti-rust packaging. Furthermore, full insurance is provided under CIF terms to protect your investment.
Q: What is the timeline for a customized elevator?
A: 1. Design: Proposal in 3 days after hoist-way details. 2. Production: Starts post-deposit. 3. Delivery: Typically ships 15 days after balance payment.
Q: What are the payment terms?
A: We offer flexible terms: 30% deposit to start production and 70% balance due post-production and pre-shipment via T/T or major international methods.
Q: What additional costs should be considered in the quote?
A: Under CIF, our quote includes the product, export packaging, freight to your port, and insurance. You should consider local import duties, customs fees, and local labor.
Q: Do you offer specialized training?
A: Yes, we provide both on-site and remote training for operation and maintenance to ensure long-term equipment reliability.

Related Products